Обяви 0 За нас Контакти
Продава 2-СТАЕН
град София, Хиподрума
ул. Кюстендил
205 000 €
400 945.15 лв.

(2 929 €, 5 728.63 лв./m2)
Цената е с включено ДДС
История на цената
Коригирана в 19:31 на 6 април, 2026 год.
Обявата е посетена 798 пъти.
Площ:
70 m2
Етаж:
2-ри от 6
Строителство:
Тухла, Въведен в експлоатация 1999 г.

Описание на имота:


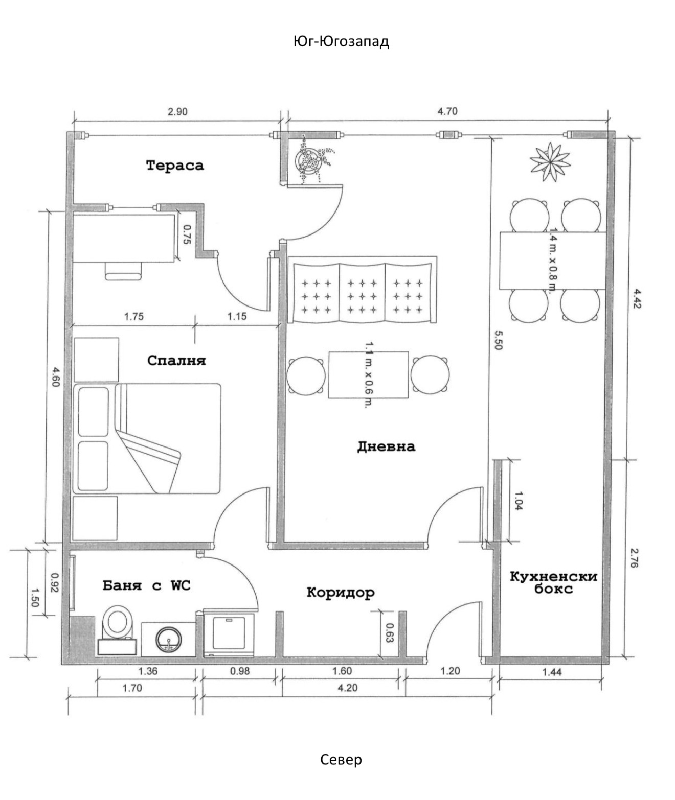
Агенция Хайни Ви представя много просторен, светъл и слънчев апртамент, в монолитна сграда от 1999г. Статут на апартамент. В близост до метростанция и пазар Красно село, до училища, детски градини, магазини и други спирки на градския транспорт. С гледка към вътрешен двор, с изложение югозапад, среден апартамент. Имот без тежести и с изрядни документи за сделка. Разпределение - антре, дневна с трапезария и кухненски бокс, спалня, баня и тоалетна и тераса. По нотариален акт 69 кв.м. с общите части от сградата и парцела + Прилежащо мазе 3 кв.м.. Апартаментът е за ремонт, което дава възможност на новите собственици да го превърнат в своя уникален дом, с усещане за уют и изисканост. Ключ в агенцията! Лице за контакт - Анелия Ангелова - 0889 23 33 66
Особености
Тухла
Асансьор
Контрол на достъпа
За ремонт
За контакт:
0889233366
Агенция:
ХАЙНИ
0889233366
ХАЙНИ logo
Медал за прослужено време
В imot.bg от 2013 г.
haini_anelia.imot.bg
Адрес:
област София, гр. София, BG831397230
ИЗПРАТИ ЗАПИТВАНЕ
ИЗПРАТИ ЗАПИТВАНЕТО

Продава 2-СТАЕН
град София, Хиподрума
ул. Кюстендил
Обява: 1b177305043796577

205 000 €
400 945.15 лв.
История на цената
(2 929 €, 5 728.63 лв./m2)

Цената е с включено ДДС
ЗАПАЗИ ОБЯВАТА

Местоположение: град София, Хиподрума, ул. Кюстендил

Допълнителни данни за имотите в района и сравнение с други райони

Покажи

Период

и 4 месеца

* Средните цени са определени чрез медианна стойност